Этот синхронный 16-полюсный двигатель без встроенного редуктора производится в Европе. Он может использоваться для широкого круга электрических лифтов разных конструкций. Благодаря высокой грузоподъемности до 2500 кг и скорости 2 м/с идеально подходит для пассажирских лифтов с просторной кабиной и для транспортных лифтов в учреждениях.

  • Работа с низким уровнем шума.
  • Плавный ход,
  • Надёжность и эффективность.
  • Идеально подходит для пассажирских лифтов с просторной кабиной.
  • Дополнительно – функция растормаживания вручную.
  • Комплексное решение с инверторным приводом YASKAWA L1000A: Гарантированное комфортное движение при минимизированных затратах на установку.

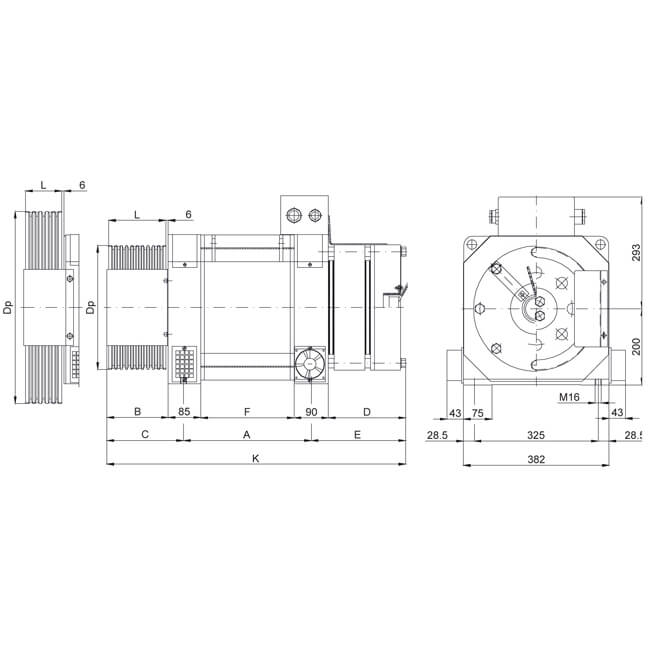
Стандартные характеристики и размеры MSYP-200

Крепление троса 2:1

Тип двигателя Ном. мощность (кВт) Нагрузка (кг) Канатоведущ. шкив Ø (мм) Желоба каната Ø (мм) Об./мин. при 1 м/с Номин. ток (А) ID-номер
MSYP-200.45-20 8.8 1250 320 10x8 120 27.5 20125120
MSYP-200.55-20 11.2 1600 320 10x8 120 34.3 20160120
MSYP-200.70-20 11.2 1600 400 10x10 96 36.5 20160096
MSYP-200.70-20 14.0 2000 320 10x8 120 37.0 20200120
MSYP-200.85-20 14.0 2000 400 10x10 96 45.6 20200096
MSYP-200.85-20 17.5 2500 320 10x8 120 60.0 20250120
MSYP-200.100-20 17.5 2500 400 10x10 96 57.3 20250096

Крепление троса 1:1

Тип двигателя Ном. мощность (кВт) Нагрузка (кг) Канатоведущ. шкив Ø (мм) Желоба каната Ø (мм) Об./мин. при 1 м/с Номин. ток (А) ID-номер
MSYP-200.45-20 4.5 630 320 10x8 60 14.0 20630060
MSYP-200.55-20 5.6 800 320 10x8 60 17.0 20800060
MSYP-200.70-20 5.6 800 400 10x10 48 18.0 20800048
MSYP-200.70-20 7.0 1000 320 10x8 60 23.5 20100060
MSYP-200.85-20 7.0 1000 400 10x10 48 24.0 20100048
MSYP-200.85-20 9.0 1250 320 10x8 60 30.7 20125060
MSYP-200.100-20 9.0 1250 400 10x10 48 29.5 20125048

Дополнительные версии MSYP-200 по запросу

  • мaксимальная нагрузка на ось: 9800 кг;
  • противовес при высоте движения > 40 м.
Тип двигателя Размеры (мм)
A B C F G H Dp L P K
MSYP-200.45-20 335 188 228 245 202 247 320 177 340 810
MSYP-200.55-20 385 188 228 295 202 247 320 177 340 860
MSYP-200.70-20 460 188 228 370 202 247 320 177 340 935
197 237 400 186 420 944
MSYP-200.85-20 535 188 228 445 212 257 320 177 340 1020
197 237 400 186 420 1029
MSYP-200.100-20 610 197 237 520 212 257 400 186 420 1104

Технические характеристики могут быть изменены без предварительного уведомления в ходе текущих усовершенствований и разработок.